ABB ACS510變頻器的調試
(1.1kW----110kW)
一、ACS510變頻器的控制盤
1.助手型控制盤(見《ACS510-01用戶手冊》05年版P27~P35)
下圖描述了助手型控制盤的按鍵功能和顯示信息。
2.基本型控制盤(見《ACS510-01用戶手冊》05年版P36~P40)
下圖描述了基本型控制盤的按鍵功能和顯示信息。
二、在默認宏下的基本調試
下面調試均以助手型控制盤的ABB標準宏為例。
①在變頻器通電之前,檢查確認功率電纜、控制端子的接線正確無誤。下圖的是ABB標準宏的端子接線與定義圖。
②變頻器通電后,在默認的ABB標準宏(9902=1)下,按
鍵切換至本地控制模式下,此時液晶顯示屏左上角顯示“LOC”。
③按MENU/ENTER鍵進入參數菜單,根據電機銘牌上的參數在99組設置電機參數:
l 9905(電機額定電壓)
l 9906(電機額定電流)
l 9907(電機額定頻率)
l 9908(電機額定轉速)
l 9909(電機額定功率)
④按下START鍵起動電機。再按住△或▽鍵調整給定頻率,觀察液晶顯示屏左上角,顯示變頻器和電機的旋轉狀態標記“
(正轉)”或“
(反轉)”在旋轉,同時電機旋轉。
⑤若電機轉向與要求不一致,通常有以下兩種方法改變轉向:
l 改變任意兩相電機電纜;(推薦使用)
l 更改參數1003,把原先FORWARD(正轉)改為REVERSE(反轉),原先REVERSE(反轉)改為FORWARD(正轉)。(建議不用)
77⑥按下STOP鍵停止電機,等到顯示屏的旋轉狀態標記“
(正轉)”或“
(反轉)”停止轉動后,再按
鍵切換至遠程控制模式下,此時液晶顯示屏左上角顯示“REM”。
⑦送一個外部起動信號至DI1,使電機起動。再調整連接于AI1的模擬電位器,改變給定速度,觀察液晶顯示屏左上角,顯示變頻器和電機的旋轉狀態標記“
(正轉)”或“
(反轉)”在旋轉,同時電機旋轉。
⑧送一個外部換向信號至DI2,電機將換向旋轉。
⑨送一個外部恒速信號至DI3,電機將以5Hz恒速旋轉。
⑩若想監視所有端子的信號狀態,按MENU/ENTER鍵進入參數菜單,再進入01組運行參數組,監視以下參數:
l 0118(DI1~3狀態) = ×××(二進制)
l 0119(DI4~6狀態 ) = ×××(二進制)
l 0120(AI1) = 0.0~100.0%
l 0121(AI2) = 0.0~100.0%
l 0122(RO1~3狀態) = ×××(二進制)
l 0123(RO4~6狀態) = ×××(二進制)
l 0124(AO1) = 0.0~20.0 mA
l 0125(AO2) = 0.0~20.0 mA
三、參數保存與調用、恢復出廠設置的操作
在調試變頻器的時候,有時需要檢驗變頻器硬件和軟件是否完好,并且要求最后調用原有參數。這時調試人員可以按以下步驟操作:
①保存原有參數。在本地控制模式下,按MENU/ENTER鍵進入參數菜單,設置參數:
9902(應用宏) = -1(用戶宏1存儲)
把原有參數保存在用戶宏1,以備調用。
②恢復出廠設置調試。設置參數:
9902(應用宏) = 1(ABB標準宏)
再做上面第二部分介紹的基本調試,以檢驗變頻器硬件和軟件是否完好。
③調用原有參數。設置參數:
9902(應用宏) = 0(用戶宏1上載)
調用原有參數。
四、常用參數
調試ACS510變頻器的常用參數,除了上面提到的99組、01組參數外,還有以下參數也常用到,相關參數可根據應用需求進行相應的定義。
10組: 輸入指令
1001(外部1命令) = 0~14
1002(外部2命令) = 0~14
1003(轉向) = 1~3
11組: 給定選擇
1101(控制盤給定) = 1~2
1102(外部控制選擇) = -6~12
1103(給定值1選擇) = 0~17
13組: 模擬輸入
1301(AI1下限) = 0.0~100.0%
1302(AI1上限) = 0.0~100.0%
1304(AI2下限) = 0.0~100.0%
1305(AI2上限) = 0.0~100.0%
14組: 繼電器輸出
1401(繼電器輸出1) = 0~36,45,46
1402(繼電器輸出2) = 0~36,45,46
1403(繼電器輸出3) = 0~36,45,46
15組: 模擬輸出
1501(AO1賦值) = 99~199
1504(AO1下限) = 0.0…20.0 mA
1505(AO1上限) = 0.0…20.0 mA
1507(AO2賦值) = 99~199
1510(AO2下限) = 0.0…20.0 mA
1511(AO2上限) = 0.0…20.0 mA
16組: 系統控制
1601(運行允許) = 0~7, -1~-6
20組: 限幅
2007(最小頻率) = -500.0~500.0.0 Hz
2008(最大頻率) = 0.0~500.0 Hz
21組: 起動/ 停止
2101(起動方式) = 1~5
2102(停車方式) = 1(自由停車),2(積分停車)
22組: 加速/ 減速
2202(加速時間1) = 0.0~1800.0 s
2203(減速時間1) = 0.0~1800.0 s
26組: 電機控制
2601(磁通優化) = 0(禁止),1(允許)
五、報警與故障
在調試的過程中,若變頻器出現報警或故障信號,請參閱《ACS510-01用戶手冊》05年版“故障診斷”部分(P193~203)。
很多報警或故障是由外圍引入變頻器的信號不正確導致的,這些信號包括連接到變頻器電源質量、開關信號、模擬信號、脈沖信號以及通訊信號等等。所以一般首先檢查這些信號是否正確;再根據設備的工藝要求檢查參數設置是否正確;最后才可能是硬件故障,這時可聯系供應商尋求技術支持,幫助排障。
六、補充說明
軟件版本為206A的ACS510存在一些問題:
在某些情況下變頻器會產生過流故障(F001),具體現象描述如下:
1.當變頻器從額定頻率,額定負載運行狀態開始減速到40Hz時,變頻器會由于F001過流故障而停機。(例如當變頻器在PID控制模式下減速時)
2.當變頻器從額定頻率,額定負載運行狀態積分停車時,會發生F001故障。
3.當變頻器在接近額定點的狀態運行幾分鐘后,會發生F001故障。
如果客戶遇到了這個故障,請告訴他們取消磁通優化功能(設置參數2601=0)。
七、實例說明
現有一臺三相異步電動機需要采用ACS510變頻器,上位機PLC(S7-300)能夠讀取變頻器運行時的頻率(4~20MA),同時PLC能夠控制電機運行時的頻率。
電機參數如下:
電機額定功率 4KW、功率因數 0.88 、效率 85%、額定電流 8.1A、
額定電壓 AC 380V 角形接法 50Hz、電機轉速2880 r/min
① 變頻器參數設定
變頻器內部參數設定如下:
|
序號 |
參數地址 |
地址含義 |
參數設定 |
|
1 |
9901 |
語言 |
中文 |
|
2 |
9905 |
電機額定電壓 |
380V |
|
3 |
9906 |
電機額定電流 |
8.1A |
|
4 |
9908 |
電機額定轉速 |
2880 rpm |
|
5 |
9909 |
電氣額定功率 |
4 kw |
|
6 |
9915 |
電機功率因數 |
0.88 |
|
7 |
1001 |
外部1命令 |
DI1 |
|
8 |
1003 |
轉向 |
正轉 |
|
9 |
1103 |
給定值1選擇 |
AI2 |
|
10 |
1403 |
繼電器輸出 |
故障 |
|
11 |
1501 |
AO1賦值 |
輸出頻率 |
|
12 |
1502 |
AO1賦值下限 |
0Hz |
|
13 |
1503 |
AO1賦值上限 |
50Hz |
|
14 |
1504 |
AO1最小值 |
0mA |
|
15 |
1505 |
AO1最大值 |
20mA |
|
16 |
2202 |
加速時間1 |
30S |
|
17 |
2203 |
減速時間1 |
20S |
② PLC程序
模擬量采集程序
模擬量輸出程序
PID 控制程序
上位機WINCC程序略
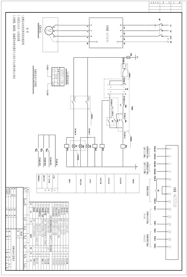
③ 電氣圖紙及材料表


返回頂部
刷新頁面
下到頁底